Trilocale in vendita

Caprarola, Via orsini
€ 28.000
3 locali 3 locali
55 Mq 55 Mq
1 bagno 1 bagno

Trilocale in vendita

Caprarola, Via orsini

Descrizione annuncio

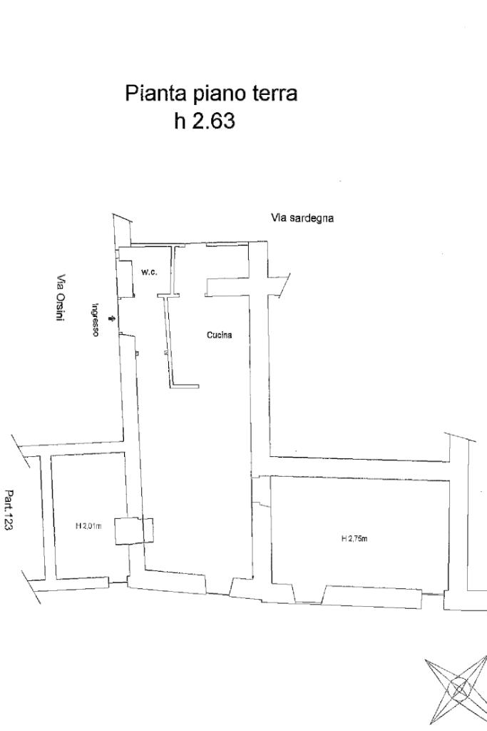
Nel centro storico di Caprarola proponiamo appartamento piano terra con ingresso indipendente da ristrutturare.

L'abitazione si trova a pochi passi a piedi rispetto a centri di interesse dell'antico borgo, come Palazzo Farnese, ed è servito dalla propria cantina di pertinenza di circa 50mq.

Al piano terra si dispongono tutti i locali principali di casa: salone con angolo cottura e camino, camera matrimoniale, cameretta e bagno.

L'appartamento necessita di lavori di ristrutturazione e, oltre alla comodità del piano e della sua posizione strategica, è particolarmente adatta per chi ricerca spazi da modificare ed adattare alle proprie esigenze personali.

Mostra tutto

Nelle vicinanze

Ricariche auto elettriche Ricariche auto elettriche
Caprarola Caduti Sul Lavoro | EnelX
830 m
Caprarola San Liborio | EnelX
1,5 Km
Farmacia Farmacia
La Paradisa
840 m
Supermercati Supermercati
inCOOP
430 m
Negozi Negozi
EMI Market
840 m
Mini Market Cristofori
1,0 Km
Bar Bar
Copacabana
2,7 Km
Ristoranti Ristoranti
Ristorante Salumeria del Vignola
130 m
Antica Trattoria del Borgo
190 m
Il Caravaggio
310 m
Pizzeria i Due Gallozzi
480 m
Pizzeria Chalet Italia
600 m
Mostra tutto

Caratteristiche

Rif.:
61162872
Piano:
Basso
Camere da letto:
2
Arredamento:
Assente
Condizionamento:
Assente
Ascensore:
No
Mostra tutto
Prezzo Prezzo
€ 28.000
Rata mutuo Rata mutuo
€ 133 / mese
Spese annue Spese annue
€ 0
Proponi il tuo prezzoProponi il tuo prezzo

Classe Energetica

Questo immobile è esente da classe energetica
Anno di costruzione:
1967
Riscaldamento:
Autonomo
Tipo impianto:
Ad aria
Tipo alimentazione:
Altro

Ti interessa visionare l'immobile?

Fissa un appuntamento  Fissa un appuntamento

Richiedi informazioni

Clicca su Leggi per aprire l'informativa
* Questi campi sono obbligatori

Calcola il tuo mutuo

Semplice e senza impegno
Anticipo

( % )
Mutuo

( % )

pochi semplici passi

inserisci i tuoi dati
Questionario completato
Grazie per aver richiesto un appuntamento senza impegno con un nostro Consulente del Credito e Assicurativo.

Hai inserito correttamente tutti i dati necessari e a breve riceverai una e-mail con un link da convalidare per inviare i tuoi dati.
Affiliato
Immobiliare La Mossa Srl
Via Cassia Cimina, 69 01037 Ronciglione (VT)

Il nostro staff


  • Daniele Casamassa
    Affiliato

  • Alessia Barbini
    Coordinatrice

  • Angelo Capocchia
    Affiliato

  • Giulia De Laurentis
    Collaboratrice

  • Francesco Lorenzo Greco
    Collaboratore

  • Greta Guastini
    Collaboratrice

  • Leonardo Mometti
    Responsabile

  • Samuel Mandaradoni
    Collaboratore

  • Matteo Saraconi
    Affiliato
Via Cassia Cimina, 69 01037 Ronciglione (VT)
Zona: Ronciglione - Caprarola
Mostra su mappa
Affiliato
Immobiliare La Mossa Srl
Via Cassia Cimina, 69 01037 Ronciglione (VT)

2026 Tecnocasa Franchising S.p.A. - P. IVA 08365160152 - Via Monte Bianco 60/A 20089 Rozzano (MI). Ogni agenzia ha un proprio titolare ed è autonoma. Privacy policy | Policy utilizzo | Cookie policy