Ter. residenziale in vendita

Caprarola, Loc. San Rocco
€ 83.000
1063 Mq 1063 Mq

Ter. residenziale in vendita

Caprarola, Loc. San Rocco

Descrizione annuncio

Nella zona residenziale di San Rocco, proponiamo in vendita lotti edificabili con destinazione residenziale.

I lotti si differenziano per metratura, indice di edificabilità e prezzo.

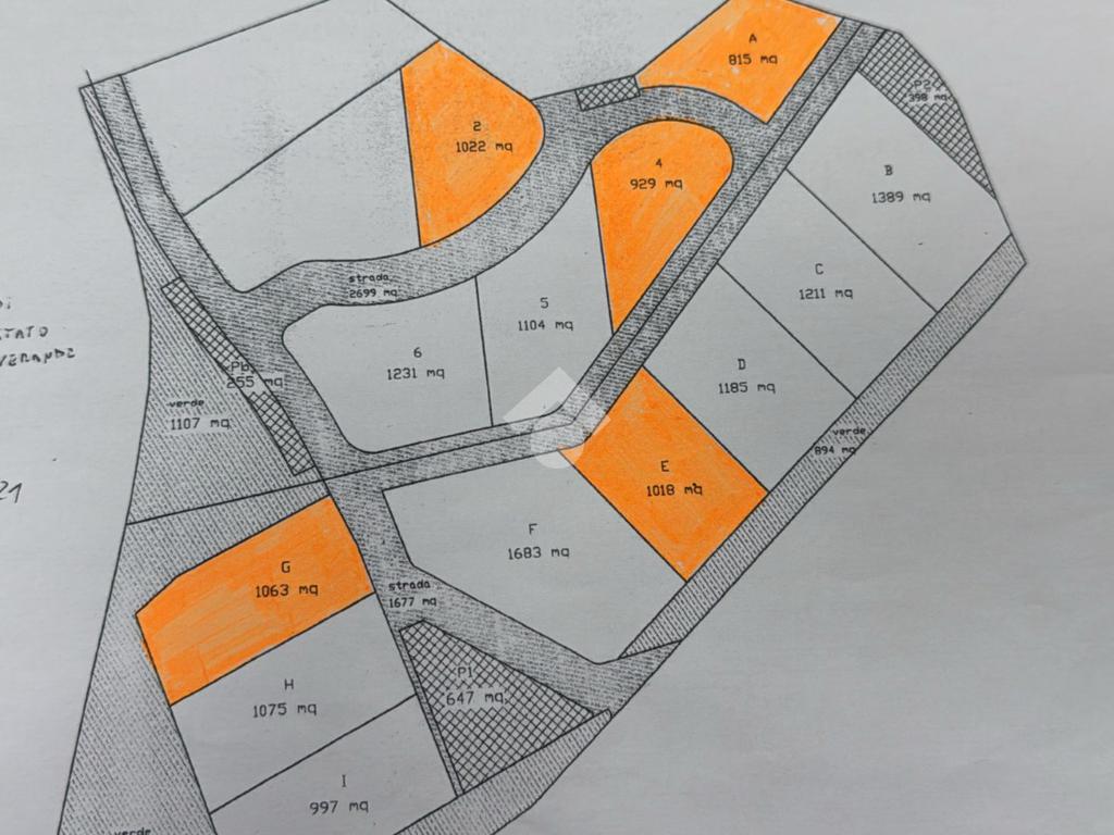
Nel dettaglio, in riferimento alla mappa presente in foto, le caratteristiche dei vari lotti sono le seguenti:

-LOTTO A: 815mq con cubatura di 582,21. prezzo 65.000

-LOTTO 2: 1022mq con cubatura di 625,44. prezzo 83.000

-LOTTO 4: 929mq con cubatura di 625,44. prezzo 65.000

-LOTTO E: 1018mq con cubatura di 582,21. prezzo 83.000

-LOTTO G: 1063mq con cubatura di 602,00. prezzo 83.000

La ditta di riferimento da inoltre la possibilità di far redigere il progetto, coordinare i lavori e realizzare le eventuali costruzioni.

Mostra tutto

Nelle vicinanze

Ricariche auto elettriche Ricariche auto elettriche
Caprarola Caduti Sul Lavoro | EnelX
1,9 Km
Farmacia Farmacia
La Paradisa
1,8 Km
Supermercati Supermercati
inCOOP
2,1 Km
Negozi Negozi
Mini Market Cristofori
1,3 Km
EMI Market
1,8 Km
Bar Bar
Copacabana
1,7 Km
Ristoranti Ristoranti
Trattoria Zi Catofio
1,5 Km
Pizzeria Chalet Italia
1,5 Km
La Bella Venere
1,7 Km
Ristoranti
1,8 Km
Ristorante Salumeria del Vignola
1,9 Km
Mostra tutto

Caratteristiche

Rif.:
61143989
Piano:
Terra
Arredamento:
Assente
Condizionamento:
Assente
Ascensore:
No
Riscaldamento:
Assente
Mostra tutto
Prezzo Prezzo
€ 83.000
Rata mutuo Rata mutuo
€ 383 / mese
Proponi il tuo prezzoProponi il tuo prezzo

Classe Energetica

Questo immobile è esente da classe energetica
Riscaldamento:
Assente

Ti interessa visionare l'immobile?

Fissa un appuntamento  Fissa un appuntamento

Richiedi informazioni

* Questi campi sono obbligatori

Calcola il tuo mutuo

Semplice e senza impegno
Anticipo

( % )
Mutuo

( % )

pochi semplici passi

inserisci i tuoi dati
Questionario completato
Grazie per aver richiesto un appuntamento senza impegno con un nostro Consulente del Credito e Assicurativo.

Hai inserito correttamente tutti i dati necessari e a breve riceverai una e-mail con un link da convalidare per inviare i tuoi dati.
Affiliato
Immobiliare La Mossa Srl
Via Cassia Cimina, 69 01037 Ronciglione (VT)

Il nostro staff


  • Daniele Casamassa
    Affiliato

  • Alessia Barbini
    Coordinatrice

  • Angelo Capocchia
    Affiliato

  • Giulia De Laurentis
    Collaboratrice

  • Francesco Lorenzo Greco
    Collaboratore

  • Greta Guastini
    Collaboratrice

  • Leonardo Mometti
    Responsabile

  • Samuel Mandaradoni
    Collaboratore

  • Matteo Saraconi
    Affiliato
Via Cassia Cimina, 69 01037 Ronciglione (VT)
Zona: Ronciglione - Caprarola
Mostra su mappa
Affiliato
Immobiliare La Mossa Srl
Via Cassia Cimina, 69 01037 Ronciglione (VT)

2025 Tecnocasa Franchising S.p.A. - P. IVA 08365160152 - Via Monte Bianco 60/A 20089 Rozzano (MI). Ogni agenzia ha un proprio titolare ed è autonoma. Privacy policy | Policy utilizzo | Cookie policy