Trilocale in vendita

Ronciglione, Via Guglielmo Marconi
€ 33.000
3 locali 3 locali
45 Mq 45 Mq
1 bagno 1 bagno

Trilocale in vendita

Ronciglione, Via Guglielmo Marconi

Descrizione annuncio

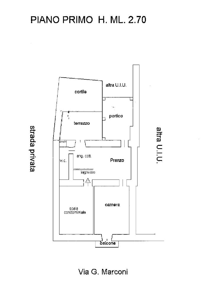
Nel centro storico di Ronciglione, proponiamo in vendita appartamento al piano primo da ristrutturare con ingresso indipendente e terrazzo.

Internamente l'abitazione si compone di una zona salone con angolo cottura, camera matrimoniale con balcone che affaccia su via Marconi e bagno con doccia.

Lo spazio esterno di casa è caratterizzato da un ampio terrazzo in parte coperto e da un piccolo cortile interno, collegato all'ingresso indipendente sul retro.

L'immobile necessita di lavori di ristrutturazione che consentono di personalizzare e valorizzare al meglio gli spazi di casa, per usufruire di una soluzione caratteristica al centro storico senza rinunciare al comfort di uno sfogo esterno vivibile.

Mostra tutto

Nelle vicinanze

Trasporto pubblico Trasporto pubblico
Trasporto pubblico
200 m
Ricariche auto elettriche Ricariche auto elettriche
Ronciglione Mancini | EnelX
370 m
Ronciglione Palazzetto Sport | EnelX
760 m
Le Cartiere Autolavaggio
1,8 Km
Scuole Scuole
Liceo Scientifico "Antonio Meucci"
230 m
Farmacia Farmacia
Farmacia
210 m
Ospedali Ospedali
Ospedale Sant'Anna
210 m
Supermercati Supermercati
Coop
1,1 Km
Hurrà Discount
1,2 Km
Negozi Negozi
Alimentari
180 m
Panificio Sangiorgini
180 m
Ferrari Spose
360 m
Ferrari Centro Moda
370 m
Minimarket "Il Buongustaio"
410 m
Bar Bar
Fontana Grande
230 m
Bar Bellatreccia
300 m
Ristoranti Ristoranti
Taverna della Canonica
110 m
La Corte dei Prefetti di Vico
500 m
Il Divino
570 m
Ristorante Stella
580 m
Antica Osteria
640 m
Mostra tutto

Caratteristiche

Rif.:
61139607
Piano:
1 di 2 (Piano medio)
Posti auto:
1
Balconi:
1
Terrazzi:
1
Camere da letto:
1
Mostra tutto
Prezzo Prezzo
€ 33.000
Rata mutuo Rata mutuo
€ 156 / mese
Spese annue Spese annue
€ 0
Proponi il tuo prezzoProponi il tuo prezzo

Classe Energetica

G
G
G
G
G
G
G
G
G
EP invernale del fabbricato:
EP estiva del fabbricato:
Anno di costruzione:
1967
Riscaldamento:
Autonomo
Tipo impianto:
A radiatori
Tipo alimentazione:
Metano

Ti interessa visionare l'immobile?

Fissa un appuntamento  Fissa un appuntamento

Richiedi informazioni

Clicca su Leggi per aprire l'informativa
* Questi campi sono obbligatori

Calcola il tuo mutuo

Semplice e senza impegno
Anticipo

( % )
Mutuo

( % )

pochi semplici passi

inserisci i tuoi dati
Questionario completato
Grazie per aver richiesto un appuntamento senza impegno con un nostro Consulente del Credito e Assicurativo.

Hai inserito correttamente tutti i dati necessari e a breve riceverai una e-mail con un link da convalidare per inviare i tuoi dati.
Affiliato
Immobiliare La Mossa Srl
Via Cassia Cimina, 69 01037 Ronciglione (VT)

Il nostro staff


  • Daniele Casamassa
    Affiliato

  • Alessia Barbini
    Coordinatrice

  • Angelo Capocchia
    Affiliato

  • Giulia De Laurentis
    Collaboratrice

  • Francesco Lorenzo Greco
    Collaboratore

  • Greta Guastini
    Collaboratrice

  • Leonardo Mometti
    Responsabile

  • Samuel Mandaradoni
    Collaboratore

  • Matteo Saraconi
    Affiliato
Via Cassia Cimina, 69 01037 Ronciglione (VT)
Zona: Ronciglione - Caprarola
Mostra su mappa
Affiliato
Immobiliare La Mossa Srl
Via Cassia Cimina, 69 01037 Ronciglione (VT)

2026 Tecnocasa Franchising S.p.A. - P. IVA 08365160152 - Via Monte Bianco 60/A 20089 Rozzano (MI). Ogni agenzia ha un proprio titolare ed è autonoma. Privacy policy | Policy utilizzo | Cookie policy