5 locali in vendita

Ronciglione, Vicolo del Profiele
€ 19.000
5 locali 5 locali
70 Mq 70 Mq
1 bagno 1 bagno

5 locali in vendita

Ronciglione, Vicolo del Profiele

Descrizione annuncio

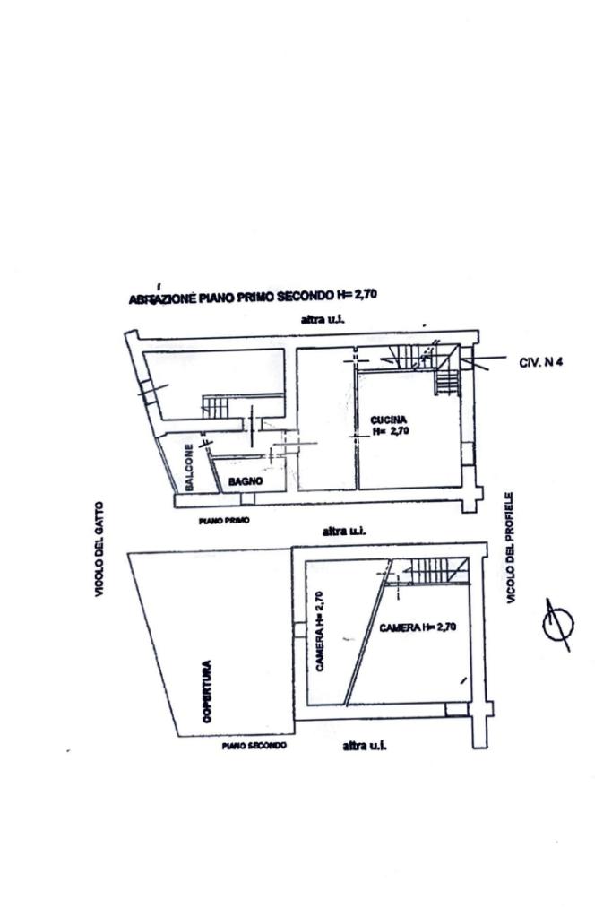
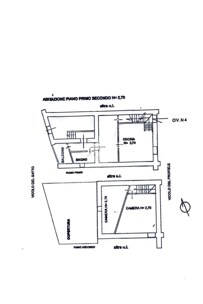
Nel borgo antico di Ronciglione, in prossimità del caratteristico Castello della Rovere famoso per i suoi Torrioni, proponiamo in vendita palazzetto cielo terra da ristrutturare.

L'abitazione con il suo ingresso indipendente, si dispone ai piani primo e secondo e necessita di lavori completi di rifacimento.

Al piano principale si trovano la cucina, un salotto, bagno con doccia ed un ulteriore ambiente che può essere adibito a studio. Il piano superiore ospita due camere.

La posizione strategica nel borgo e la possibilità di ristrutturare personalizzando gli ambienti a proprio gusto, rendono questo immobile particolarmente adatto come opportunità di investimento.

Mostra tutto

Nelle vicinanze

Trasporto pubblico Trasporto pubblico
Trasporto pubblico
160 m
Ricariche auto elettriche Ricariche auto elettriche
Ronciglione Mancini | EnelX
280 m
Ronciglione Palazzetto Sport | EnelX
920 m
Le Cartiere Autolavaggio
1,5 Km
Scuole Scuole
Liceo Scientifico "Antonio Meucci"
160 m
Farmacia Farmacia
Farmacia
150 m
Ospedali Ospedali
Ospedale Sant'Anna
490 m
Supermercati Supermercati
Hurrà Discount
910 m
Coop
1,0 Km
Negozi Negozi
Ferrari Spose
130 m
Ferrari Centro Moda
140 m
Panificio Sangiorgini
150 m
Minimarket "Il Buongustaio"
160 m
Alimentari
170 m
Bar Bar
Fontana Grande
90 m
Bar Bellatreccia
130 m
Ristoranti Ristoranti
La Corte dei Prefetti di Vico
220 m
Il Divino
300 m
Ristorante Stella
310 m
Antica Osteria
370 m
Opificio
430 m
Mostra tutto

Caratteristiche

Rif.:
61148689
Piano:
1 di 2 (Piano medio)
Balconi:
1
Camere da letto:
2
Arredamento:
Assente
Condizionamento:
Assente
Mostra tutto
Prezzo Prezzo
€ 19.000
Rata mutuo Rata mutuo
€ 90 / mese
Spese annue Spese annue
€ 0
Proponi il tuo prezzoProponi il tuo prezzo

Classe Energetica

G
G
G
G
G
G
G
G
G
EP globale non rinnovabile:
252.90 kW h/m² anno
EP globale rinnovabile:
5.56 kW h/m² anno
EP invernale del fabbricato:
EP estiva del fabbricato:
Anno di costruzione:
1967
Riscaldamento:
Assente

Ti interessa visionare l'immobile?

Fissa un appuntamento  Fissa un appuntamento

Richiedi informazioni

Clicca su Leggi per aprire l'informativa
* Questi campi sono obbligatori

Calcola il tuo mutuo

Semplice e senza impegno
Anticipo

( % )
Mutuo

( % )

pochi semplici passi

inserisci i tuoi dati
Questionario completato
Grazie per aver richiesto un appuntamento senza impegno con un nostro Consulente del Credito e Assicurativo.

Hai inserito correttamente tutti i dati necessari e a breve riceverai una e-mail con un link da convalidare per inviare i tuoi dati.
Affiliato
Immobiliare La Mossa Srl
Via Cassia Cimina, 69 01037 Ronciglione (VT)

Il nostro staff


  • Daniele Casamassa
    Affiliato

  • Alessia Barbini
    Coordinatrice

  • Angelo Capocchia
    Affiliato

  • Giulia De Laurentis
    Collaboratrice

  • Francesco Lorenzo Greco
    Collaboratore

  • Greta Guastini
    Collaboratrice

  • Leonardo Mometti
    Responsabile

  • Samuel Mandaradoni
    Collaboratore

  • Matteo Saraconi
    Affiliato
Via Cassia Cimina, 69 01037 Ronciglione (VT)
Zona: Ronciglione - Caprarola
Mostra su mappa
Affiliato
Immobiliare La Mossa Srl
Via Cassia Cimina, 69 01037 Ronciglione (VT)

2026 Tecnocasa Franchising S.p.A. - P. IVA 08365160152 - Via Monte Bianco 60/A 20089 Rozzano (MI). Ogni agenzia ha un proprio titolare ed è autonoma. Privacy policy | Policy utilizzo | Cookie policy