Quadrilocale in vendita

Ronciglione, Via Borgo di sotto
€ 29.000
4 locali 4 locali
90 Mq 90 Mq
1 bagno 1 bagno

Quadrilocale in vendita

Ronciglione, Via Borgo di sotto

Descrizione annuncio

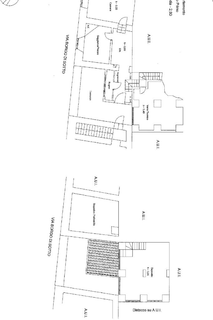
Nel borgo storico di Ronciglione, a pochi passi da Piazza degli Angeli proponiamo in vendita appartamento interamente da ristrutturare con terrazzo di pertinenza. Nell'annuncio sono presenti dei render creati con intelligenza artificiale per mostrare come potrebbe apparire la casa a ristrutturazione completata.

L’immobile con una metratura complessiva di circa 90 mq offre una distribuzione degli spazi comoda e funzionale, ideale sia per un utilizzo residenziale che per un progetto di investimento.

Il vero punto di forza è rappresentato dallo sfogo esterno: una terrazza vivibile che regala un valore aggiunto per la zona, perfetta per realizzare uno spazio esclusivo.

Grazie alla sua posizione, e alla possibilità di personalizzazione totale, questa soluzione è ideale per chi è alla ricerca di una casa da modellare completamente a proprio piacimento o per uso investimento.

Mostra tutto

Nelle vicinanze

Trasporto pubblico Trasporto pubblico
Trasporto pubblico
170 m
Ricariche auto elettriche Ricariche auto elettriche
Ronciglione Mancini | EnelX
230 m
Ronciglione Palazzetto Sport | EnelX
890 m
Le Cartiere Autolavaggio
1,5 Km
Scuole Scuole
Liceo Scientifico "Antonio Meucci"
160 m
Farmacia Farmacia
Farmacia
140 m
Ospedali Ospedali
Ospedale Sant'Anna
510 m
Supermercati Supermercati
Hurrà Discount
840 m
Coop
930 m
Negozi Negozi
Ferrari Spose
60 m
Ferrari Centro Moda
70 m
Minimarket "Il Buongustaio"
80 m
Forno Gasparini
140 m
Alimentari
190 m
Bar Bar
Bar Bellatreccia
100 m
Fontana Grande
150 m
Ristoranti Ristoranti
La Corte dei Prefetti di Vico
150 m
Il Divino
230 m
Ristorante Stella
230 m
Antica Osteria
300 m
Opificio
360 m
Mostra tutto

Caratteristiche

Rif.:
61187298
Piano:
1 di 1 (Piano basso)
Terrazzi:
1
Camere da letto:
1
Arredamento:
Assente
Condizionamento:
Assente
Mostra tutto
Prezzo Prezzo
€ 29.000
Rata mutuo Rata mutuo
€ 137 / mese
Spese annue Spese annue
€ 0
Proponi il tuo prezzoProponi il tuo prezzo

Classe Energetica

G
G
G
G
G
G
G
G
G
EP globale non rinnovabile:
703.34 kW h/m² anno
EP globale rinnovabile:
0.00 kW h/m² anno
EP invernale del fabbricato:
EP estiva del fabbricato:
Anno di costruzione:
1967
Riscaldamento:
Autonomo
Tipo impianto:
A radiatori
Tipo alimentazione:
Metano

Ti interessa visionare l'immobile?

Fissa un appuntamento  Fissa un appuntamento

Richiedi informazioni

Clicca su Leggi per aprire l'informativa
* Questi campi sono obbligatori

Calcola il tuo mutuo

Semplice e senza impegno
Anticipo

( % )
Mutuo

( % )

pochi semplici passi

inserisci i tuoi dati
Questionario completato
Grazie per aver richiesto un appuntamento senza impegno con un nostro Consulente del Credito e Assicurativo.

Hai inserito correttamente tutti i dati necessari e a breve riceverai una e-mail con un link da convalidare per inviare i tuoi dati.
Affiliato
Immobiliare La Mossa Srl
Via Cassia Cimina, 69 01037 Ronciglione (VT)

Il nostro staff


  • Daniele Casamassa
    Affiliato

  • Alessia Barbini
    Coordinatrice

  • Angelo Capocchia
    Affiliato

  • Giulia De Laurentis
    Collaboratrice

  • Francesco Lorenzo Greco
    Collaboratore

  • Greta Guastini
    Collaboratrice

  • Leonardo Mometti
    Responsabile

  • Samuel Mandaradoni
    Collaboratore

  • Matteo Saraconi
    Affiliato
Via Cassia Cimina, 69 01037 Ronciglione (VT)
Zona: Ronciglione - Caprarola
Mostra su mappa
Affiliato
Immobiliare La Mossa Srl
Via Cassia Cimina, 69 01037 Ronciglione (VT)

2026 Tecnocasa Franchising S.p.A. - P. IVA 08365160152 - Via Monte Bianco 60/A 20089 Rozzano (MI). Ogni agenzia ha un proprio titolare ed è autonoma. Privacy policy | Policy utilizzo | Cookie policy