Villa singola in vendita

Ronciglione, Str. Carrareccia di Casale
€ 279.000
8 locali 8 locali
160 Mq 160 Mq
2 bagni 2 bagni

Villa singola in vendita

Ronciglione, Str. Carrareccia di Casale

Descrizione annuncio

Villa indipendente con rifiniture di pregio, terreno e garage.

In zona di campagna, in località XXX miglia proponiamo villa singola di 160mq su due livelli, circondata da terreno di 2800 metri.

La villa negli ultimi anni ha subito una ristrutturazione che le consente di vantare ottime condizioni generali, pur mantendo il fascino ed il carattere di una residenza di campagna.

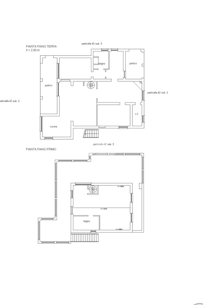
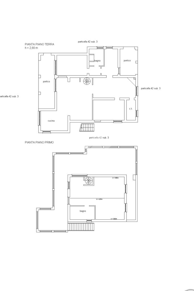
Gli ambienti principali della casa si sviluppano al piano terra, offrendo praticità e comfort in ogni spazio. Entrando ci accoglie una zona living con camino e proseguendo troviamo un'ampia sala da pranzo con cucina abitabile a vista, due camere matrimoniali ed un bagno con doccia.

Il piano superiore ospita un loft rifinito con elegante soffitto in travi a vista, servito dal proprio bagno con doccia e dotato anche del suo ingresso indipendente. Il loft consente inoltre l'uscita su un terrazzo perimetrale che regala una suggestiva vista panoramica verso i borghi di Ronciglione e Caprarola ed al contempo sul monte Soratte che si staglia all'orizzonte.

Considerata la posizione strategica, in contesto di campagna ma vicino ai centri di Nepi e di Ronciglione, l'abitazione si presta sia come prima casa che residenza da adibire a casa vacanze. Ideale per chi ricerca una soluzione che condensi i canoni rustici dei casali di campagna, con l'eleganza di una ristrutturazione moderna.

Mostra tutto

Nelle vicinanze

Ristoranti Ristoranti
Trattoria XXX miglia
1,0 Km
Mostra tutto

Caratteristiche

Rif.:
61122291
Piano:
1 di 1 (Piano su più livelli)
Box:
1
Posti auto:
1
Terrazzi:
1
Camere da letto:
3
Mostra tutto
Prezzo Prezzo
€ 279.000
Rata mutuo Rata mutuo
€ 1.286 / mese
Spese annue Spese annue
€ 0
Proponi il tuo prezzoProponi il tuo prezzo

Classe Energetica

Questo immobile è esente da classe energetica
Anno di costruzione:
1969
Riscaldamento:
Autonomo
Tipo impianto:
A radiatori
Tipo alimentazione:
GPL

Ti interessa visionare l'immobile?

Fissa un appuntamento  Fissa un appuntamento

Richiedi informazioni

* Questi campi sono obbligatori

Calcola il tuo mutuo

Semplice e senza impegno
Anticipo

( % )
Mutuo

( % )

pochi semplici passi

inserisci i tuoi dati
Questionario completato
Grazie per aver richiesto un appuntamento senza impegno con un nostro Consulente del Credito e Assicurativo.

Hai inserito correttamente tutti i dati necessari e a breve riceverai una e-mail con un link da convalidare per inviare i tuoi dati.
Affiliato
Immobiliare La Mossa Srl
Via Cassia Cimina, 69 01037 Ronciglione (VT)

Il nostro staff


  • Daniele Casamassa
    Affiliato

  • Alessia Barbini
    Coordinatrice

  • Angelo Capocchia
    Affiliato

  • Giulia De Laurentis
    Collaboratrice

  • Francesco Lorenzo Greco
    Collaboratore

  • Greta Guastini
    Collaboratrice

  • Leonardo Mometti
    Responsabile

  • Samuel Mandaradoni
    Collaboratore

  • Matteo Saraconi
    Affiliato
Via Cassia Cimina, 69 01037 Ronciglione (VT)
Zona: Ronciglione - Caprarola
Mostra su mappa
Affiliato
Immobiliare La Mossa Srl
Via Cassia Cimina, 69 01037 Ronciglione (VT)

2025 Tecnocasa Franchising S.p.A. - P. IVA 08365160152 - Via Monte Bianco 60/A 20089 Rozzano (MI). Ogni agenzia ha un proprio titolare ed è autonoma. Privacy policy | Policy utilizzo | Cookie policy