Villa singola in vendita

Ronciglione, Via Cassia Cimina
€ 159.000
4 locali 4 locali
160 Mq 160 Mq
3 bagni 3 bagni

Villa singola in vendita

Ronciglione, Via Cassia Cimina

Descrizione annuncio

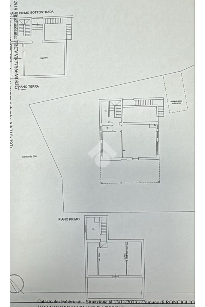
In prossimità del Lago di Vico ed a pochi km dal centro di Ronciglione, proponiamo in vendita villa singola con 2150mt di parco.

La villa, in buone condizioni interne, al piano terra presenta luminoso e spazioso soggiorno con angolo cottura, camera matrimoniale e bagno con doccia.

Salendo al piano superiore troviamo un'ulteriore camera matrimoniale con pavimento in parquet, porta finestra che si affaccia sul terrazzo con vista panoramica sul lago di Vico e bagno con vasca.

La proprietà è completata da una spaziosa taverna con ingresso indipendente in pietra e bagno di servizio.

L'immobile è ideale sia come prima che come seconda casa, considerando la posizione in contesto naturalistico vicino al lago che al contempo permette di raggiungere rapidamente il centro di Ronciglione con i suoi servizi.

Mostra tutto

Nelle vicinanze

Trasporto pubblico Trasporto pubblico
Trasporto pubblico
1,1 Km
Ricariche auto elettriche Ricariche auto elettriche
Ronciglione Palazzetto Sport | EnelX
1,7 Km
Ronciglione Mancini | EnelX
1,9 Km
Scuole Scuole
Liceo Scientifico "Antonio Meucci"
1,8 Km
Farmacia Farmacia
Farmacia
1,8 Km
Ospedali Ospedali
Ospedale Sant'Anna
1,5 Km
Supermercati Supermercati
Coop
2,4 Km
Hurrà Discount
2,8 Km
Negozi Negozi
Panificio Sangiorgini
1,8 Km
Alimentari
1,8 Km
Vestimi tu.....
1,8 Km
Ferrari Spose
2,0 Km
Ferrari Centro Moda
2,0 Km
Bar Bar
Fontana Grande
1,9 Km
Bar Bellatreccia
1,9 Km
Copacabana
2,0 Km
Ristoranti Ristoranti
2 Cigni
1,2 Km
Ristorante Pizzeria Il Portichetto
1,5 Km
Il Peperoncino
1,5 Km
Taverna della Canonica
1,5 Km
Fiorò
1,9 Km
Mostra tutto

Caratteristiche

Rif.:
61164995
Piano:
2 di 3 (Piano su più livelli)
Terrazzi:
1
Camere da letto:
2
Arredamento:
Assente
Condizionamento:
Autonomo
Mostra tutto
Prezzo Prezzo
€ 159.000
Rata mutuo Rata mutuo
€ 742 / mese
Proponi il tuo prezzoProponi il tuo prezzo

Classe Energetica

Questo immobile è esente da classe energetica
Anno di costruzione:
1990
Riscaldamento:
Autonomo
Tipo impianto:
A radiatori
Tipo alimentazione:
GPL

Ti interessa visionare l'immobile?

Fissa un appuntamento  Fissa un appuntamento

Richiedi informazioni

Clicca su Leggi per aprire l'informativa
* Questi campi sono obbligatori

Calcola il tuo mutuo

Semplice e senza impegno
Anticipo

( % )
Mutuo

( % )

pochi semplici passi

inserisci i tuoi dati
Questionario completato
Grazie per aver richiesto un appuntamento senza impegno con un nostro Consulente del Credito e Assicurativo.

Hai inserito correttamente tutti i dati necessari e a breve riceverai una e-mail con un link da convalidare per inviare i tuoi dati.
Affiliato
Immobiliare La Mossa Srl
Via Cassia Cimina, 69 01037 Ronciglione (VT)

Il nostro staff


  • Daniele Casamassa
    Affiliato

  • Alessia Barbini
    Coordinatrice

  • Angelo Capocchia
    Affiliato

  • Giulia De Laurentis
    Collaboratrice

  • Francesco Lorenzo Greco
    Collaboratore

  • Greta Guastini
    Collaboratrice

  • Leonardo Mometti
    Responsabile

  • Samuel Mandaradoni
    Collaboratore

  • Matteo Saraconi
    Affiliato
Via Cassia Cimina, 69 01037 Ronciglione (VT)
Zona: Ronciglione - Caprarola
Mostra su mappa
Affiliato
Immobiliare La Mossa Srl
Via Cassia Cimina, 69 01037 Ronciglione (VT)

2026 Tecnocasa Franchising S.p.A. - P. IVA 08365160152 - Via Monte Bianco 60/A 20089 Rozzano (MI). Ogni agenzia ha un proprio titolare ed è autonoma. Privacy policy | Policy utilizzo | Cookie policy