Bifamiliare in vendita

Ronciglione, Via Parietario - Punta Del Lago
€ 89.000
6 locali 6 locali
115 Mq 115 Mq
2 bagni 2 bagni

Bifamiliare in vendita

Ronciglione, Via Parietario - Punta Del Lago

Descrizione annuncio

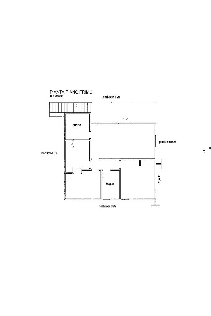
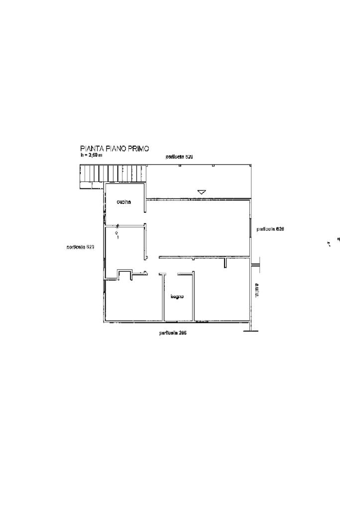
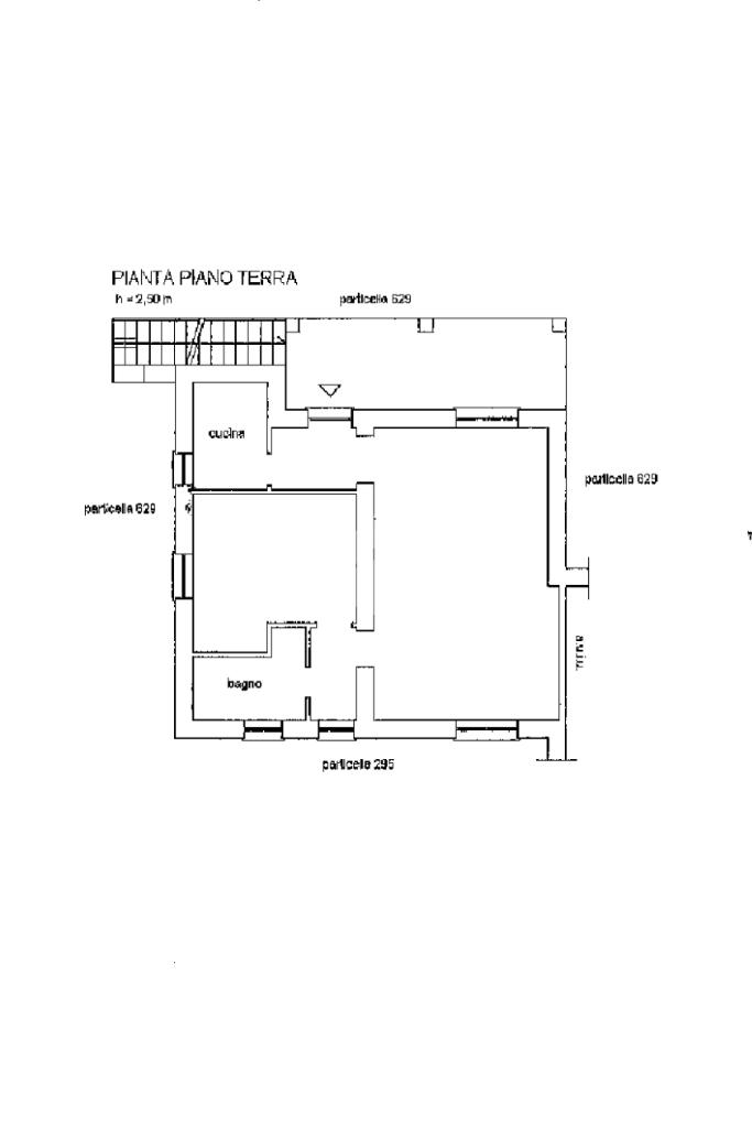
Nel tranquillo contesto residenziale di Punta del Lago, in prossimità del Lago di Vico, proponiamo in vendita porzione di bifamiliare da ultimare con giardino di 450metri.

La soluzione si presenta allo stato rustico con lavori di ristrutturazione avviati: il piano terra è gia stato predisposto per quanto riguarda l'impiantistica, mentre il piano superiore necessita di una ristrutturazione più approfondita che interesserà anche il tetto dell'abitazione.

A ristrutturazione ultimata la villa si presenterà come un immobile disposto su due livelli abitativi e gli spazi interni potranno essere organizzati e riadattati compatibilmente alle varie esigenze.

L'immobile ad oggi è una valida proposta per chi è alla ricerca di una soluzione da personalizzare con spazi da modificare a proprio gusto.

Mostra tutto

Nelle vicinanze

Trasporto pubblico Trasporto pubblico
Trasporto pubblico
2,1 Km
Ricariche auto elettriche Ricariche auto elettriche
Ronciglione Palazzetto Sport | EnelX
2,3 Km
Ronciglione Mancini | EnelX
2,8 Km
Scuole Scuole
Liceo Scientifico "Antonio Meucci"
2,8 Km
Farmacia Farmacia
Farmacia
2,8 Km
Ospedali Ospedali
Ospedale Sant'Anna
2,4 Km
Negozi Negozi
Vestimi tu.....
2,6 Km
Alimentari
2,7 Km
Panificio Sangiorgini
2,8 Km
Ferrari Spose
2,9 Km
Ferrari Centro Moda
2,9 Km
Bar Bar
Copacabana
2,7 Km
Fontana Grande
2,8 Km
Bar Bellatreccia
2,8 Km
Ristoranti Ristoranti
Ristorante Pizzeria Il Portichetto
340 m
Il Peperoncino
350 m
Fiorò
730 m
Parco Airone
1,4 Km
La Scaletta
2,1 Km
Mostra tutto

Caratteristiche

Rif.:
61186007
Piano:
Su più livelli
Terrazzi:
1
Camere da letto:
2
Arredamento:
Assente
Condizionamento:
Assente
Mostra tutto
Prezzo Prezzo
€ 89.000
Rata mutuo Rata mutuo
€ 422 / mese
Spese annue Spese annue
€ 350
Proponi il tuo prezzoProponi il tuo prezzo

Classe Energetica

G
G
G
G
G
G
G
G
G
EP invernale del fabbricato:
EP estiva del fabbricato:
Anno di costruzione:
1976
Riscaldamento:
Autonomo
Tipo impianto:
A radiatori
Tipo alimentazione:
Altro

Ti interessa visionare l'immobile?

Fissa un appuntamento  Fissa un appuntamento

Richiedi informazioni

Clicca su Leggi per aprire l'informativa
* Questi campi sono obbligatori

Calcola il tuo mutuo

Semplice e senza impegno
Anticipo

( % )
Mutuo

( % )

pochi semplici passi

inserisci i tuoi dati
Questionario completato
Grazie per aver richiesto un appuntamento senza impegno con un nostro Consulente del Credito e Assicurativo.

Hai inserito correttamente tutti i dati necessari e a breve riceverai una e-mail con un link da convalidare per inviare i tuoi dati.
Affiliato
Immobiliare La Mossa Srl
Via Cassia Cimina, 69 01037 Ronciglione (VT)

Il nostro staff


  • Daniele Casamassa
    Affiliato

  • Alessia Barbini
    Coordinatrice

  • Angelo Capocchia
    Affiliato

  • Giulia De Laurentis
    Collaboratrice

  • Francesco Lorenzo Greco
    Collaboratore

  • Greta Guastini
    Collaboratrice

  • Leonardo Mometti
    Responsabile

  • Samuel Mandaradoni
    Collaboratore

  • Matteo Saraconi
    Affiliato
Via Cassia Cimina, 69 01037 Ronciglione (VT)
Zona: Ronciglione - Caprarola
Mostra su mappa
Affiliato
Immobiliare La Mossa Srl
Via Cassia Cimina, 69 01037 Ronciglione (VT)

2026 Tecnocasa Franchising S.p.A. - P. IVA 08365160152 - Via Monte Bianco 60/A 20089 Rozzano (MI). Ogni agenzia ha un proprio titolare ed è autonoma. Privacy policy | Policy utilizzo | Cookie policy